Contemporary Sea View Apartments in Mijas Costa – Luxury, Comfort and Mediterranean Living
Exclusive New Build Residences with Panoramic Sea Views
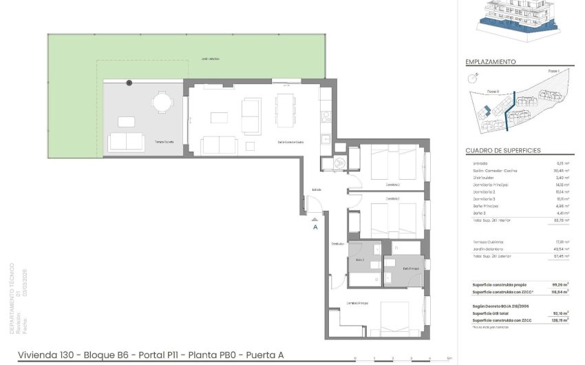
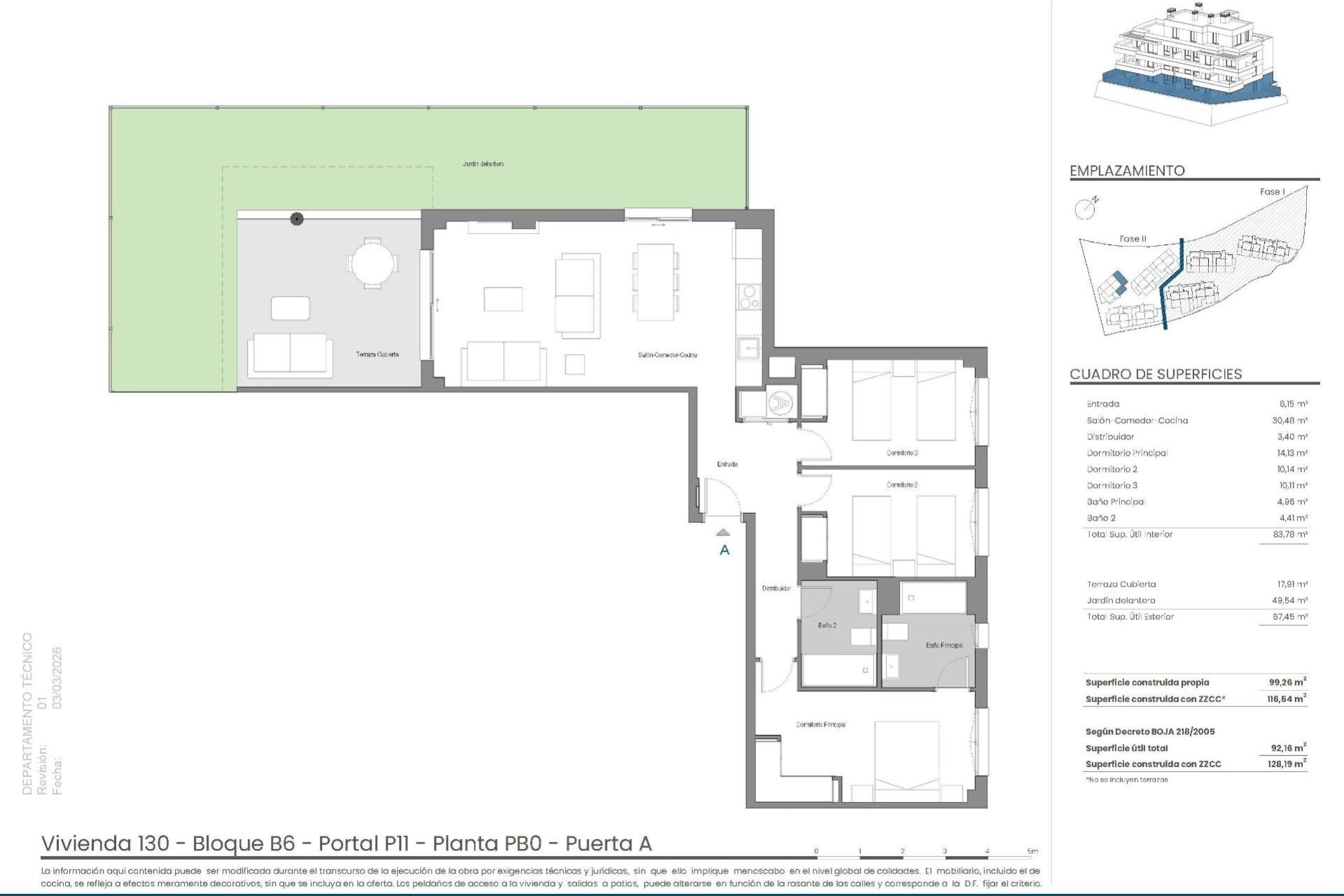
Discover this exceptional new residential development in Mijas Costa, featuring 142 apartments with 2 and 3 bedrooms. Each home is designed to offer comfort, light, and open views of the Mediterranean Sea, with even ground-floor units enjoying panoramic vistas. Located in one of the most sought-after areas of the Costa del Sol, this project offers the perfect blend of design, lifestyle, and location.
Premium Location with Excellent Connectivity
Strategically positioned in Mijas Costa, this gated community is just 10 minutes from the beach and 25 minutes from Málaga International Airport. Marbella is only 35 km away, and Fuengirola just 10 km, offering vibrant shopping, dining, and nightlife options. Golf lovers will appreciate the proximity to Calanova Golf Club, only 8 km away. La Cañada Shopping Center, with top international brands and entertainment, is 30 km from the development.
In addition, the new Costa del Sol Park is being developed just 800 meters away. This massive green area will offer walking trails, a lake, open-air amphitheater, skate park, climbing wall, and cycling lanes — perfect for family fun and outdoor living.
Designed for Comfort and Wellbeing
This residential complex has been thoughtfully created to enhance your quality of life with premium amenities:
Large swimming pool with chill-out area
Gym, spa, and wellness area
Social club and coworking lounge
Landscaped gardens and green zones
Private parking and storage room included in price
The layout of the buildings and shared areas ensures tranquility and privacy, while promoting a sense of community in a natural setting.
Modern Interiors and High-Quality Finishes
Each home features:
Fully equipped open-concept kitchens with premium appliances: induction hob, extractor, fridge, oven, microwave, dishwasher, and washing machine
Spacious terraces with stunning sea views
Stylish bathrooms with high-end fixtures and walk-in resin showers
Ducted hot and cold air conditioning for year-round comfort
Reinforced security entrance doors and energy-efficient systems
Live the Mediterranean Lifestyle
Mijas Costa offers the best of both worlds: the charm of a traditional Andalusian town and the convenience of modern coastal living. Whether you’re relaxing by the beach, exploring the mountains, or enjoying a round of golf, this development puts you in the heart of it all.
Don’t miss the opportunity to own your dream home on the Costa del Sol. Contact us today for more information or to schedule your visit.
407