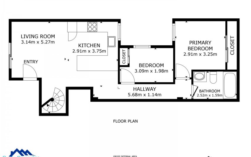
Découvrez cette magnifique propriété idéalement située à Los Alcázares, à seulement 250 mètres de la plage – parfaite pour profiter du soleil, de la mer et du confort.Cette maison, entièrement rénovée, allie style moderne et finitions haut de gamme. Elle comprend 3 chambres et 2 salles de bains élégantes, idéales pour les familles ou pour recevoir des invités. Située au premier étage et répartie sur deux niveaux, elle offre une distribution agréable et baignée de lumière naturelle.Chaque étage dispose d'une terrasse exposée plein sud, idéale pour profiter du soleil toute la journée. La superbe cuisine ouverte, véritable cœur de la maison, communique harmonieusement avec le séjour. Pour un confort optimal, la climatisation est installée dans le séjour et la cuisine.De plus, la propriété comprend une place de parking souterrain avec un local de rangement privatif, offrant un confort et un espace supplémentaires.Toutes les commodités, comme les commerces, les restaurants et la plage, sont accessibles à pied, faisant de cette propriété une combinaison parfaite d'emplacement, de confort et de qualité de vie.