Villas jumelées neuves avec piscine privée dans le complexe La Finca Golf Resort, Algorfa
Une vie méditerranéenne exclusive à La Finca Golf
Découvrez ce nouveau complexe résidentiel exceptionnel situé dans le prestigieux complexe La Finca Golf Resort à Algorfa, sur la Costa Blanca Sud. Vous pouvez choisir entre des appartements de 2/3 chambres avec piscine commune ou des villas jumelées ou individuelles avec piscine privée. Entourée de fairways luxuriants et de paysages naturels, cette communauté offre un style de vie idyllique dans un environnement paisible et sécurisé.
La charmante ville d'Algorfa est connue pour son caractère espagnol traditionnel, son excellente gastronomie et son atmosphère détendue, ce qui en fait une destination idéale pour les maisons de vacances et la vie permanente.
Villas jumelées modernes avec piscine privée
Ces villas jumelées magnifiquement conçues disposent de 3 chambres et 2 salles de bains, alliant fonctionnalité, confort et style moderne.
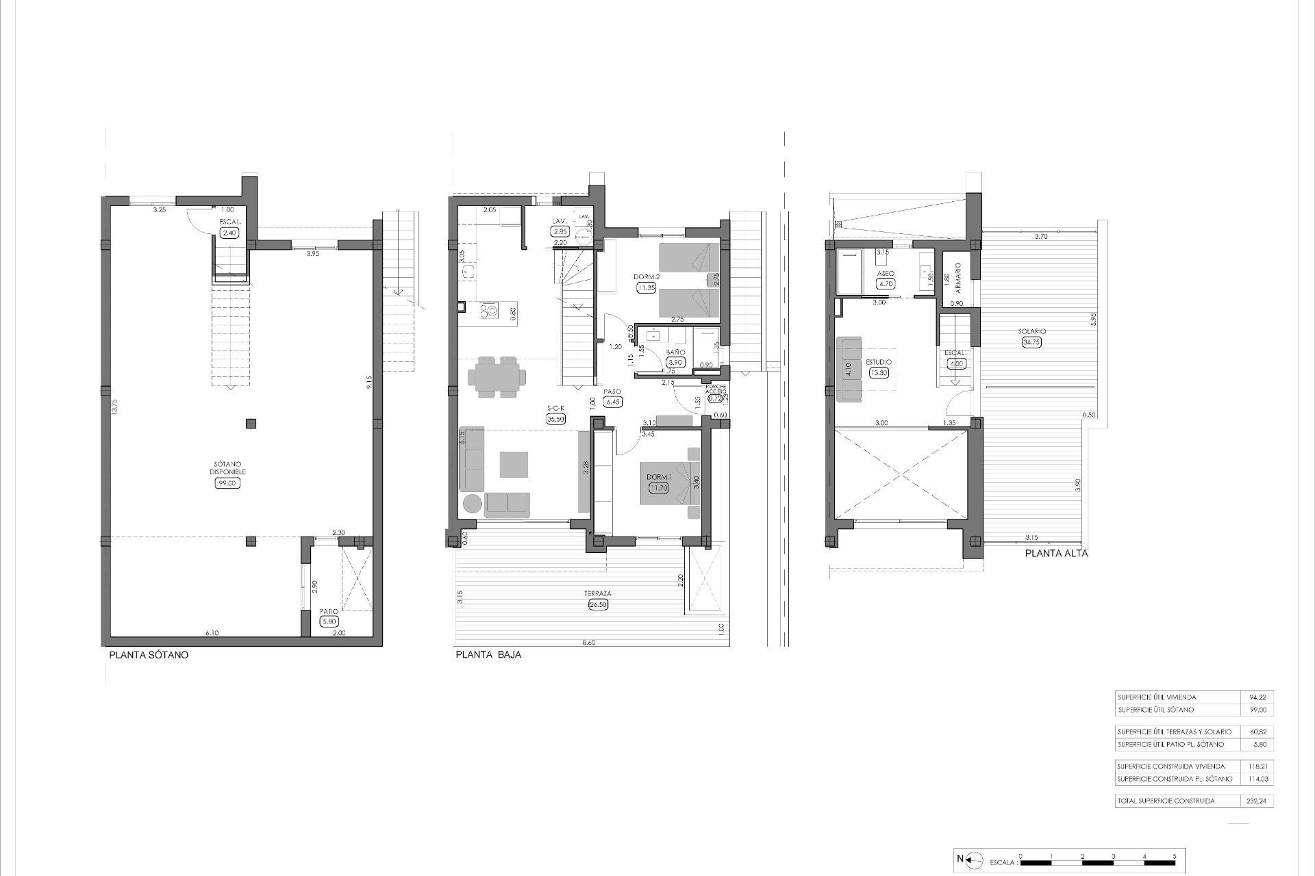
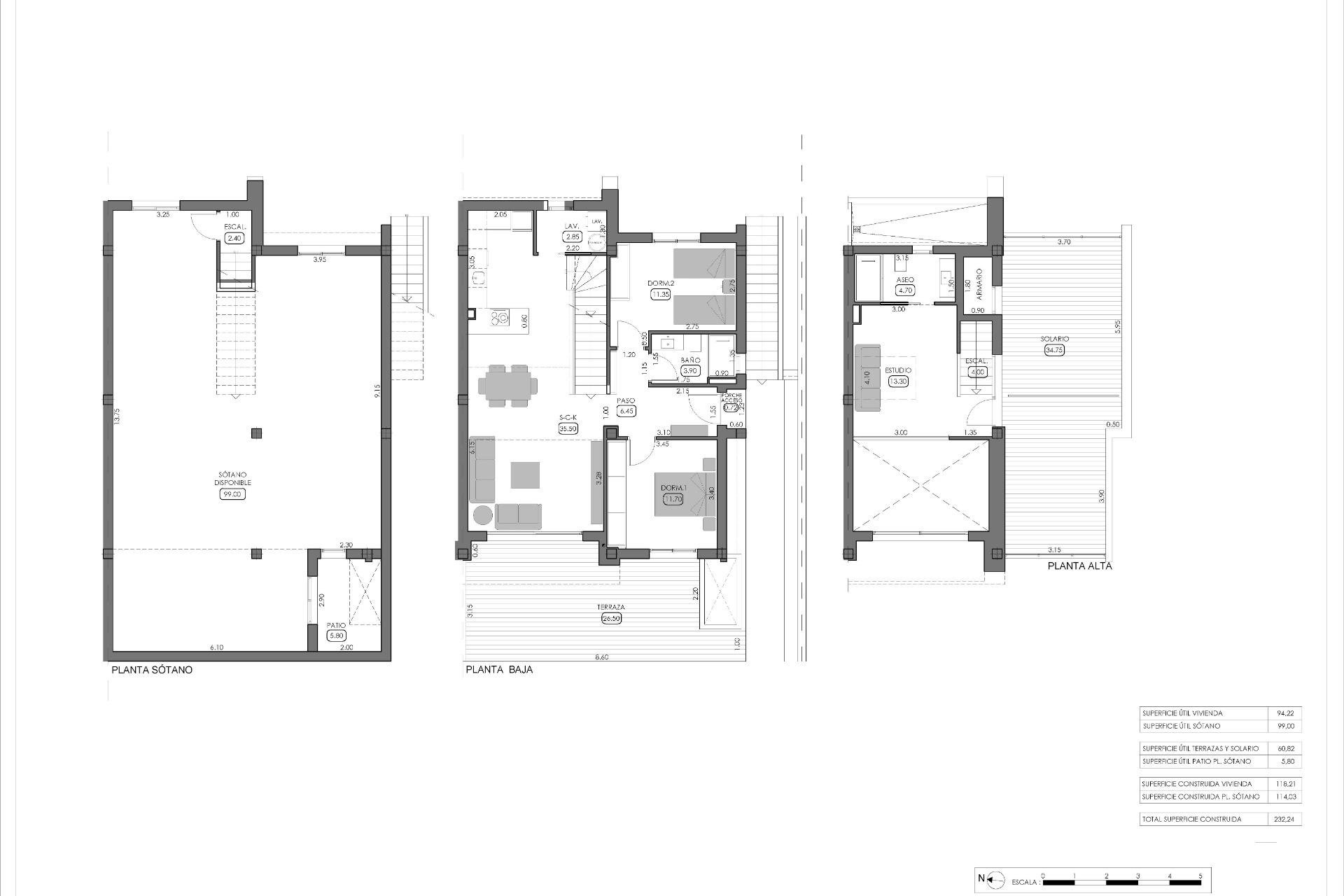
Détails de l'agencement
Rez-de-chaussée
Salon et salle à manger lumineux et ouverts, reliés à une cuisine équipée
Grandes portes coulissantes donnant directement accès au jardin et à la piscine privée
Deux chambres spacieuses avec placards intégrés
Une salle de bain complète
Parking privé dans la propriété
Étage supérieur
Studio avec salle de bain, idéal pour un bureau, un salon ou un espace invités
Accès à une terrasse privée ouverte de 30 m², parfaite pour prendre le soleil et se détendre
Caractéristiques et finitions de haute qualité
Construites selon des normes haut de gamme, ces villas offrent un confort contemporain pour vivre toute l'année, notamment
Armoires encastrées dans toutes les chambres
Volets électriques dans le salon et les chambres
Salles de bains entièrement équipées avec miroirs et parois de douche
Climatisation centralisée entièrement installée
Jardin et piscine privés
Emplacement privilégié à proximité des plages, du golf et des services
La Finca Golf Resort est l'une des destinations de golf les plus renommées de la Costa Blanca, offrant une large gamme de services tels qu'un hôtel de luxe, des restaurants, un spa et des installations sportives. Le complexe bénéficie d'un accès rapide aux villes, plages et aéroports voisins, offrant commodité et connectivité.
Distances vers les points clés
La Finca Golf Club : accessible à pied
Plages de Guardamar del Segura : 15 km
Torrevieja et Orihuela Costa : 15 km
Almoradí, Benijófar et Ciudad Quesada : à quelques minutes en voiture
Aéroport d'Alicante : 35 km
Profitez du meilleur de la vie sur la Costa Blanca
Avec leur design moderne, leurs espaces extérieurs privés et leur emplacement privilégié, ces villas sont un excellent choix pour les familles, les investisseurs et les amateurs de golf à la recherche d'un style de vie de qualité dans le sud de l'Espagne. Contactez-nous dès aujourd'hui pour organiser une visite ou recevoir plus d'informations sur ce nouveau projet immobilier exclusif à La Finca Golf Resort, Algorfa.