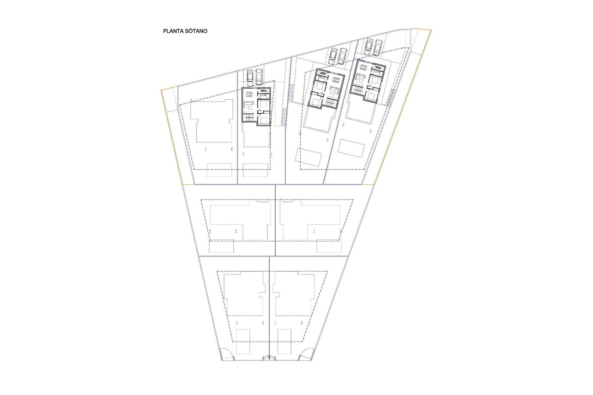
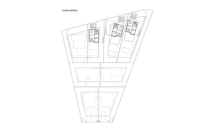
Villa. Nieuwbouw Woningen Alicante . Torrevieja Ref. NB1-59543

700.000€

Overzicht

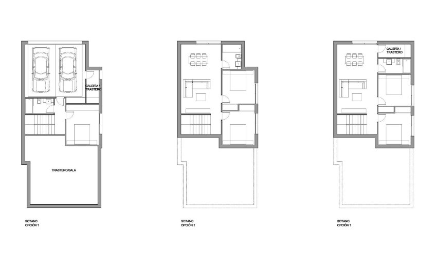
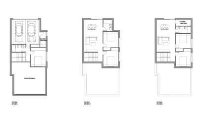
  • Meters. 120m2
  • Plot. 434m2
  • Slaapkamers. 3
  • Badkamers. 2
  • Zwembad. Ja
Slaapkamers: 3
Badkamers: 2
Gebouwd: 120m2
Plot: 434m2
Zwembad: Ja
Number of Parking Spaces: 2
Near Schools
Near Commercial Center
Location: Coastal
Double Bedrooms: 3
Near Bus Route
Solarium: Yes
Beach: 3000 Meters
Useable Build Space: 105 Msq.
Terrace: 120 Msq.
Heating: YesAir Conditioning: Pre-Installed
Parking - Space
Private pool
Garden
Gated

Beschrijving

Villa. Nieuwbouw Woningen Alicante . Torrevieja Ref. NB1-59543

Plaats

Happy Life in Spain Estates

Een vraag doen Vul een formulier in of neem contact op via WhatsApp

Verwerkingsverantwoordelijke: Happy Life In Spain Estates, Doel van de verwerking: Beheer en controle van de diensten die worden aangeboden via de Vastgoeddiensten-website, Verzenden van informatie via nieuwsbrief en andere, Rechtsgrond: Met toestemming, Ontvangers: Gegevens worden niet gedeeld, behalve voor boekhoudkundige doeleinden, Rechten van betrokkenen: Toegang, rectificatie en verwijdering van gegevens, verzoek om overdraagbaarheid, bezwaar tegen verwerking en verzoek om beperking daarvan, Herkomst van gegevens: De Betrokkene, Aanvullende informatie: U kunt aanvullende en gedetailleerde informatie over gegevensbescherming Hier raadplegen.
WhatsApp