Apartment. Nieuwbouw Woningen Alicante . Torrevieja Ref. NB1-83962

235.000€

Overzicht

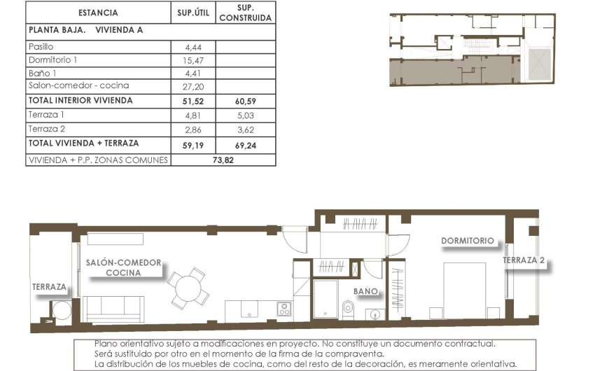
  • Meters. 60m2
  • Slaapkamers. 1
  • Badkamers. 1
  • Zwembad. Ja
Slaapkamers: 1
Badkamers: 1
Gebouwd: 60m2
Zwembad: Ja
Beach: 150 Meters
Gated
Near Schools
Near Commercial Center
Location: Coastal
Air Conditioning: Pre-Installed
Elevator/Lift
Communal Pool
Near Bus Route
Near Childrens Parks
Double Bedrooms: 1
Terrace: 7 Msq.
Space
Useable Build Space: 51 Msq.

Beschrijving

Apartment. Nieuwbouw Woningen Alicante . Torrevieja Ref. NB1-83962

Plaats

Happy Life in Spain Estates

Een vraag doen Vul een formulier in of neem contact op via WhatsApp

Verwerkingsverantwoordelijke: Happy Life In Spain Estates, Doel van de verwerking: Beheer en controle van de diensten die worden aangeboden via de Vastgoeddiensten-website, Verzenden van informatie via nieuwsbrief en andere, Rechtsgrond: Met toestemming, Ontvangers: Gegevens worden niet gedeeld, behalve voor boekhoudkundige doeleinden, Rechten van betrokkenen: Toegang, rectificatie en verwijdering van gegevens, verzoek om overdraagbaarheid, bezwaar tegen verwerking en verzoek om beperking daarvan, Herkomst van gegevens: De Betrokkene, Aanvullende informatie: U kunt aanvullende en gedetailleerde informatie over gegevensbescherming Hier raadplegen.
WhatsApp